Trang chủ / Thiết kế / Nhà phố / Mẫu Nhà Ống 3 Tầng Đẹp Ở Nông Thôn, Ngoại Thất Đẹp Cuốn Hút Mọi Ánh Nhìn
Mẫu Nhà Ống 3 Tầng Đẹp Ở Nông Thôn, Ngoại Thất Đẹp Cuốn Hút Mọi Ánh Nhìn









Thông tin công trình:
Thông tin chi tiết
Khi cuộc sống ngày càng phát triển thì quỹ đất cũng bị hạn hẹp, chính vì vậy thiết kế nhà cao tầng là một trong những kiểu kiến trúc được nhiều gia đình sống ở thành phố lớn lựa chọn. Bởi thiết kế đơn giản, hiện đại giúp tối ưu chi phí, xây cao 3 tầng giúp mở rộng được nhiều không gian diện tích sử dụng. Cùng ngắm nhìn mẫu nhà ống 3 tầng mặt tiền 5m đẹp lung linh của gia đình chị Lành tại Phú Thọ được đội ngũ kiến trúc sư của Acohome thiết kế.
Nhà ống 3 tầng mái bằng mang phong cách hiện đại đang là xu hướng mới được nhiều gia chủ yêu thích bởi vẻ đẹp tinh tế, sang trọng. Tổng thể được kiến tạo từ những khối hình hộp vuông vắn, kích thước đa dạng được sắp đặt sáng tạo mang đến nét đẹp hiện đại, mới lạ đồng thời tạo ra những khoảng không gian mở rộng rãi, thoáng đãng giúp kết nối con người với thiên nhiên.

Mặt tiền ấn tượng với cách phối màu sắc hài hòa giữa 2 tông màu chính trắng – đen, các tầng được phân chia màu sắc sáng tối hợp lý kết hợp với những vật liệu trang trí như: gạch thẻ inax, lam bê tông, nhôm, kính cường lực và đá tự nhiên để tạo nên hiệu ứng thẩm mỹ sang trọng, thời thượng cho công trình.

Thiết kế ban công trong ngôi nhà ống 3 tầng hiện đại này không chỉ đáp ứng nhu cầu thư giãn và tận hưởng không gian ngoài trời mà còn đảm bảo sự riêng tư cho gia chủ. Bên cạnh đó, ánh sáng tự nhiên và không khí trong lành được tối ưu hóa, mang lại sự thoải mái và dễ chịu cho mọi thành viên trong gia đình.
Thiết kế hệ thống cửa kính trải dài trên toàn bộ mặt tiền ngôi nhà nhằm tận dụng tối đa ánh sáng tự nhiên, mang lại cảm giác rộng rãi và thoáng đãng. Cửa kính không chỉ dễ lau chùi và có độ bền cao, mà còn giúp tiết kiệm năng lượng nhờ khả năng cách nhiệt và cách âm tốt.

Các khoảng xanh được bố trí hài hòa ở ban công, sân thượng và các khu vực chung, tạo nên một môi trường sống thoáng đãng và mát mẻ. Đây là yếu tố quan trọng giúp ngôi nhà không chỉ đáp ứng nhu cầu thẩm mỹ mà còn góp phần nâng cao chất lượng cuộc sống.

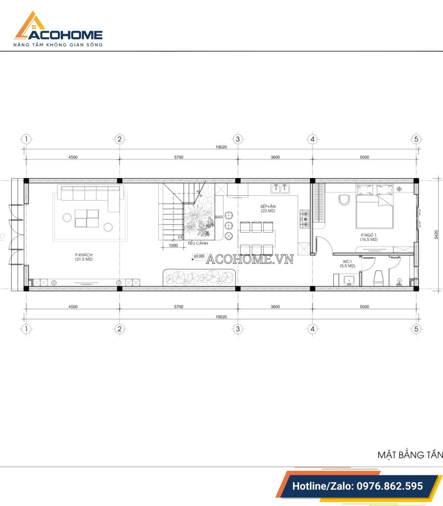
Từ sảnh chính vào là đến khu vực tiếp khách rộng rãi, qua khu vực cầu thang là đến phòng bếp ăn, một phòng ngủ riêng tư và một nhà vệ sinh chung. Mỗi chi tiết đều được chăm chút tỉ mỉ, mang lại cảm giác thoải mái và tiện nghi hoàn hảo cho gia đình.

Tầng 2 được bố trí phòng sinh hoạt chung và hai phòng ngủ, cùng với một nhà vệ sinh. Bố cục này không chỉ mang đến sự tiện nghi mà còn tạo ra một không gian ấm áp và tinh tế đặc biệt cho ngôi nhà, trên tầng 2 cũng được bố trí 1 phòng master cho gia chủ

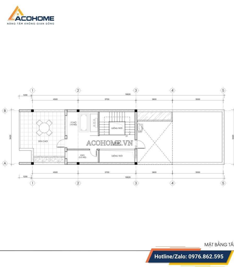
Tầng 3 được bố trí với không gian phòng thờ cúng ở phía trước, mang lại sự trang nghiêm và tôn kính. Sân chơi cung cấp không gian thoải mái và riêng tư cho gia đình. Bên cạnh đó, còn có một phòng kho để cho gia đình để đồ

















