Trang chủ / Thiết kế / Biệt thự / Thiết Kế Nhà Mái Nhật Tân Cổ Điển 2 Tầng,4 Phòng Ngủ Hoàn Thiện 1,3 tỷ, Đẹp Khó Cưỡng Tại Hưng Yên
Thiết Kế Nhà Mái Nhật Tân Cổ Điển 2 Tầng,4 Phòng Ngủ Hoàn Thiện 1,3 tỷ, Đẹp Khó Cưỡng Tại Hưng Yên







Thông tin công trình:
Thông tin chi tiết
Phong cách tân cổ điển được mọi người biết đến qua sự kết hợp tinh tế giữa tinh hoa của trường phái cổ điển và vẻ đẹp của kiến trúc hiện đại đầy mới mẻ. Mẫu thiết kế nhà đẹp này dành cho những gia chủ yêu thích vẻ đẹp xưa cũ nhưng cũng không bỏ qua những ứng dụng mới của cuộc sống hiện đại. Sự tinh tế ấy, đã tạo nên những mẫu nhà 2 tầng tân cổ điển đặc sắc ngày nay. Anh chị cùng Acohome tham khảo kiến trúc 3D và công năng của mẫu nhà được rất nhiều gia đình Việt ưa chuộng dưới đây!
Mẫu thiết kế nhà 2 tầng mái Nhật tân cổ điển mà đội ngũ kiến trúc, kỹ sư của chúng tôi vừa hoàn thiện là căn nhà nổi bật của gia đình chú Tuyên tại Hưng Yên. Công trình có thiết kế vô cùng cân đối với cách bố trí các cột trụ chính – phụ, các phào chỉ – hoa văn nhẹ nhàng nhưng lại phối hợp với nhau rất hài hòa, cân đối giúp ngôi nhà thêm phần sang trọng.

Ngôi nhà ấn tượng với màu sơn trắng tinh khôi cùng hệ mái Nhật màu xanh mang lại không gian mặt tiền có sự nhịp nhàng của màu sắc. Màu trắng cũng giúp công trình có vẻ đẹp thanh thoát, nổi bật và lôi cuốn trên từng chi tiết. Không chỉ làm các chi tiết kiến trúc tân cổ điển trở nên ấn tượng hơn: trong phong thủy nhà ở, màu trắng còn tượng trưng cho sự thịnh vượng và tượng trưng cho mọi sự khởi đầu của cuộc sống.

Ngôi nhà được các KTS đặc biệt chú trọng vào các hoa văn của cửa chính thay vì các họa tiết trên bề mặt tường giống các công trình khác nhưng vẫn mang lại sự nổi bật sang trọng cho tổng thể ngôi nhà. Ngoài ra, điều này giúp tiết kiệm một phần chi phí lớn khi xây dựng, từ đó chủ đầu tư hoàn toàn có thể đầu tư vào các không gian khác của gia đình

Nổi bật giữa màu sơn trắng sang trọng là màu nâu gỗ của cửa chính, màu đen của lan can ban công làm bằng thép nghệ thuật, mái ngói Nhật màu xanh đầy ấn tượng…mọi thứ đều đồng điệu với nhau để tạo nên một vẻ đẹp đẳng cấp, thỏa mãn thị giác của bất kì ai khi ngắm nhìn. Hệ cửa sổ sử dụng chất liệu kính dày 6.38 nhôm hệ cao cấp giúp tăng ánh sáng tự nhiên chiếu vào bên trong, đồng thời với thiết kế nhiều cửa sổ ngôi nhà sẽ đón được rất nhiều gió tự nhiên tạo nên một không gian sống thoáng mát, tươi mới hơn.

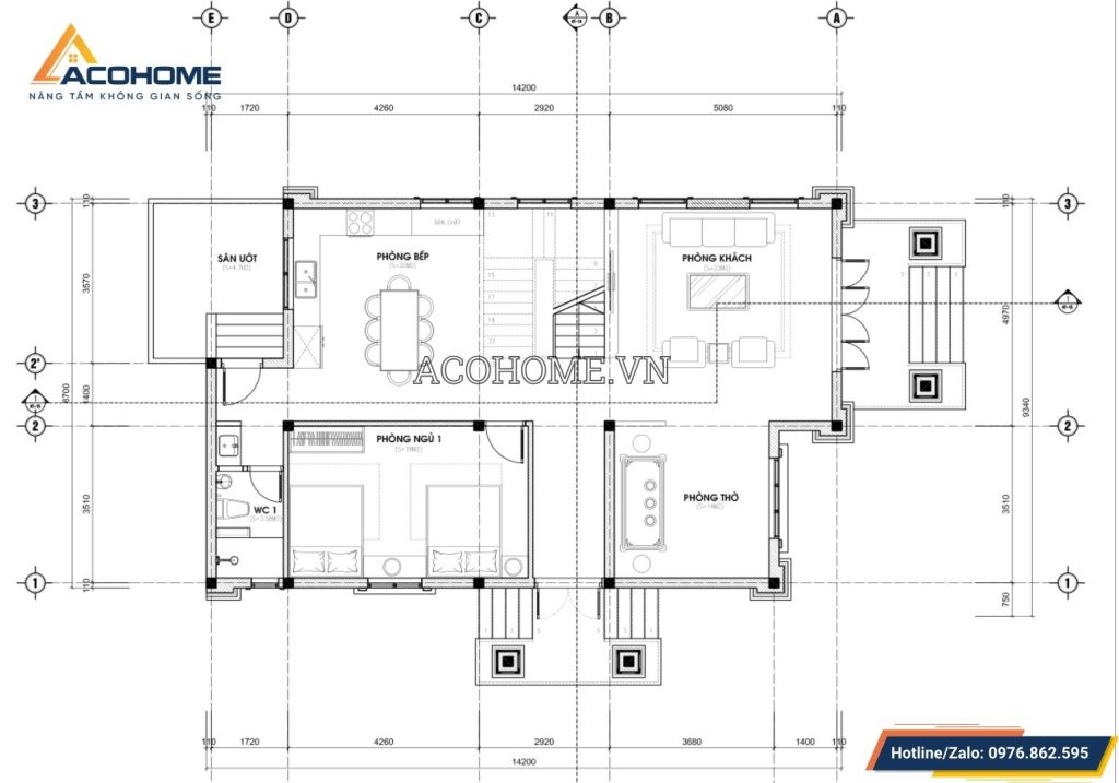
Về vị trí ngôi nhà 2 tầng mái Nhật tân cổ điển có hướng chính nằm ở hướng Tây Bắc có kích thước xây dựng là 9,5 x 14,5m. Tổng diện tích sử dụng của 2 sàn khoảng 230m² được thiết kế khoa học, công năng tiện nghi phù hợp với hoạt động sinh hoạt của gia đình chủ đầu tư.

Từ sảnh chính bước vào là phòng khách rộng và có ô cửa sổ lớn giúp không gian phòng khách luôn tràn ngập ánh sáng và gió tự nhiên. Đối diện là phòng thờ được đặt cùng hướng nhà, nơi gia chủ thờ cúng ông bà tổ tiên, cũng là nơi đón tài lộc cho gia định, bếp ăn đặt gần sảnh phụ có thiết kế tiện nghi với hệ tủ bếp chữ L rộng thoải mái cho gia chủ chứa đồ và bày đồ khi đun nấu. Trong không gian bếp còn đặt 1 bộ bàn ăn 6 ghế để mọi người quây quần và thưởng thức bữa ăn tại đây phòng ngủ đầy đủ tiện nghi đảm bảo sự thoải mái khi nghỉ ngơi cho mọi người. Nhà vệ sinh chung đặt ở giữa thuận tiện cho việc di chuyển.

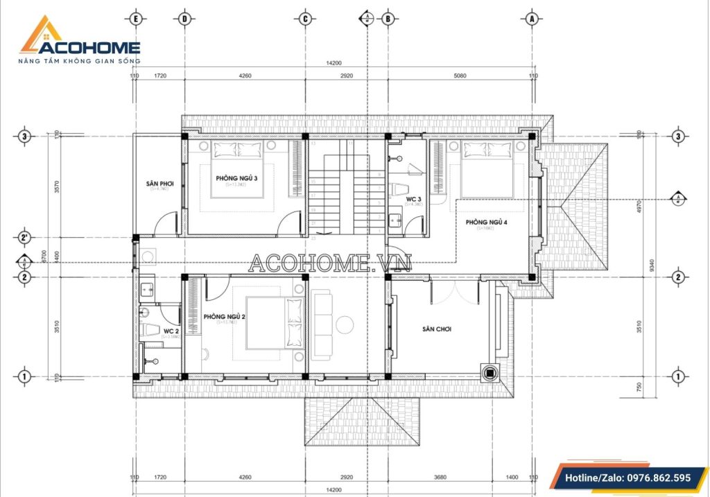
Lên đến tầng 2 được thiết kế 3 phòng ngủ đủ cho các thành viên trong gia đình sử dụng, trong đó có 1 phòng master rộng cho gia chủ tạo sự riêng tư cho chủ nhà, tầng 2 được bố trí 1 wc chung cuối nhà cho mọi người

















