Thông tin công trình:
Công năng
1 phòng khách, 5 phòng ngủ, 1 phòng bếp, 1 phòng ăn, 1 phòng thờ, 1 ban công, 5 wc
Thông tin chi tiết
Vì sao nên chọn mẫu nhà mái Nhật?
Mẫu nhà mái Nhật được nhiều gia chủ ưu ái nhờ sự kết hợp hài hòa giữa tính thẩm mỹ và công năng sử dụng. Kiểu mái này mang lại vẻ đẹp cân đối, thanh thoát cho tổng thể ngôi nhà. Điều này giúp bản thiết kế phù hợp với nhiều phong cách kiến trúc khác nhau. Với thiết kế nhiều ưu điểm khiến nó trở thành xu hướng ưa chuộng hiện nay.

Mẫu nhà mái Nhật thu hút bởi những ưu điểm nổi bật như:
- Thiết kế sang trọng và có tính thẩm mỹ cao.
- Mái dốc nhẹ giúp tổng thể ngôi nhà cân đối, hài hòa và dễ nhìn.
- Mái Nhật giúp nước mưa thoát nhanh và giảm nguy cơ thấm dột.
- Thiết kế mái tạo khoảng không giữa mái và trần nhà giúp giảm nhiệt và tăng khả năng cách nhiệt.
xem thêm: Nhà Mái Nhật 2 Tầng Tân Cổ Điển Cực Đẳng Cấp
Tổng quan về mẫu nhà mái Nhật của Acohome
Mẫu nhà mái Nhật được thiết kế có tính thẩm mỹ cao. Vẻ ngoài ngôi nhà được trang trí bằng các đường chỉ tạo điểm nhấn. Thiết kế ban công đua ra phù hợp cho gia chủ trồng cây cảnh. Tạo thuận lợi cho cây đón nắng.
Mẫu nhà mái Nhật do Acohome thiết kế giúp gia chủ tận dụng tối đa không gian. Với thiết kế 3 tầng, 2 tầng cho sinh hoạt và 1 tầng hầm. Thiết kế công năng mỗi tầng cũng được chăm chút kỹ lưỡng. Thiết kế phòng khép kín tăng tính riêng tư cho mỗi thành viên trong gia đình.
Ngoại thất của mẫu nhà mái Nhật
Ngoại thất củamẫu nhà mái Nhật phong cách hiện đại với các đường nét khỏe khoắn. Vẻ ngoài đơn giản nhưng vẫn tạo được điểm nhấn sang trọng. Tông màu chủ đạo là trắng kết hợp xanh ghi. Chi tiết này giúp ngôi nhà trở nên thanh lịch và phù hợp với nhiều phong cách.
Chi tiết mái Nhật cân đối, dua ra nhiều phía. Không chỉ đẹp về thẩm mỹ, mà còn mang tính ứng dụng cao. Với nhiều ưu điểm, mái Nhật đang ngày càng được ưa chuộng tại Việt Nam.
Cửa chính làm bằng cửa thép vân gỗ bền, đẹp. Với khả năng chịu lực tốt, không bị cong vênh, mối mọt. Mang lại ưu điểm vượt trôi hơn hẳn so với cửa gỗ tự nhiên. Toàn bộ cửa còn lại sử dụng là cửa nhôm kính xingfa màu đen. Có thiết kế sang trọng và các ưu điểm vượt trội nên ngày càng được sử dụng rộng rãi. Hệ lan can được sử dụng là lan can kính. Chi tiết này giúp tăng tính thẩm mỹ, mở rộng không gian, mang lại cảm giác thoáng đãng.
Thiết kế cổng và tường rào của mẫu nhà mái Nhật
Cổng và tường rào đóng vai trò quan trọng trong kiến trúc của mẫu nhà mái Nhật. Thiết kế tường rào được xây dựng chắc chắn.
Cổng chính của mẫu nhà mái Nhật được thiết kế đơn giản nhưng vẫn sang trọng. Sử dụng chất liệu kim loại sơn tĩnh điện kết hợp các chi tiết trang trí nhẹ nhàng.Thiết kế này vừa giúp tăng độ an toàn vừa đảm bảo về mặt thẩm mỹ.
Bên cạnh đó, hệ tường rào bao quanh còn tạo khoảng không gian riêng cho gia đình, đồng thời giúp khu vực sân vườn trở nên gọn gàng và bố trí hợp lý hơn.
Công năng tầng hầm
Tầng hầm được thiết kế giúp tối ưu không gian để đáp ứng nhu cầu sinh hoạt của gia đình. Khu vực tầng hầm tận dụng để đỗ xe ô tô và xe máy. Tận dụng khu vực này làm kho chứa đồ để tối ưu hóa không gian.
Nhờ cách bố trí khoa học, tầng hầm giúp mở rộng diện tích sử dụng và nâng cao sự tiện nghi cho công trình.

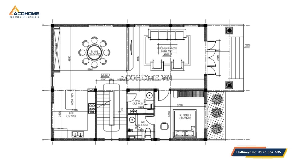
Công năng tầng 1
Công năng tầng 1 của mẫu nhà mái Nhật được bố trí khoa học đáp ứng nhu cầu sinh hoạt hằng ngày của gia đình.

Từ sảnh chính bước vào là khu vực phòng khách rộng rãi (26,5m2). Khoảng không gian này thích hợp để đón khách và sinh hoạt chung của gia đình. Phòng khách của mẫu nhà mái Nhật được thiết kế thoáng, tận dụng ánh sáng tự nhiên từ hệ cửa lớn phía trước.
Tiếp nối phòng khách là khu vực phòng ăn với diện tích 26,5m2. Đủ chỗ cho bàn ăn nhiều người, phù hợp cho những bữa cơm gia đình ấm cúng. Khu bếp được bố trí riêng biệt nhưng vẫn kết nối thuận tiện với phòng ăn. Điều này đảm bảo sự tiện lợi trong quá trình sử dụng.
Tầng 1 của mẫu nhà mái Nhật bố trí thêm một phòng ngủ có nhà vệ sinh riêng. Phù hợp cho người lớn tuổi trong gia đình. Khu vực vệ sinh chung và cầu thang được đặt ở vị trí trung tâm giúp việc di chuyển giữa các tầng thuận tiện hơn.
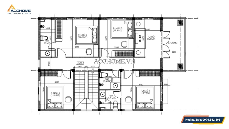
Công năng tầng 2
Tầng 2 của mẫu nhà mái Nhật là không gian nghỉ ngơi chính của gia đình. Khu vực này được bố trí nhiều phòng ngủ nhằm đáp ứng nhu cầu sinh hoạt của các thành viên.

Tầng 2 của bản vẽ này bao gồm ba phòng ngủ. Mỗi phòng đều có cửa sổ giúp lấy ánh sáng và thông gió tự nhiên. Điều này giúp không gian bên trong luôn thoáng mát và dễ chịu.
Ngoài ra, tầng 2 của mẫu nhà mái Nhật còn có phòng thờ được bố trí ở vị trí trang trọng, phù hợp với phong tục sinh hoạt của nhiều gia đình Việt. Không gian ban công phía trước giúp ngôi nhà có thêm khu vực thư giãn, trồng cây xanh hoặc tận hưởng không khí trong lành.
xem thêm: Mẫu Nhà Mái Nhật Đẹp Khó Cưỡng
Kết luận
Có thể thấy rằng mẫu nhà mái Nhật 2 tầng là lựa chọn lý tưởng cho nhiều gia chủ. Đặc biệt là những gia đình mong muốn sở hữu không gian sống hiện đại, tiện nghi và bền vững. Thiết kế này mang lại vẻ đẹp sang trọng và đảm bảo công năng sử dụng khoa học.
Nếu bạn đang tìm kiếm một mẫu nhà mái Nhật đẹp và tối ưu công năng. Đây chắc chắn là một phương án đáng để tham khảo.
Acohome luôn sẵn sàng tư vấn và thiết kế mẫu nhà cá nhân hóa cho từng khách hàng.
Acohome – Đơn Vị Thiết Kế & Thi Công Uy Tín
Acohome là đơn vị chuyên thiết kế, thi công nhà mái Nhật hiện đại, cam kết chất lượng và dịch vụ uy tín. Với đội ngũ chuyên môn cao, Acohome mang đến giải pháp phù hợp nhất cho từng không gian sống gia đình. Cam kết bàn giao đúng tiến độ, đúng thiết kế. Bảo hành rõ ràng, đảm bảo sự hài lòng của khách hàng.
Tìm hiểu thêm về Acohome: