Trang chủ / Thiết kế / Biệt thự / Mẫu nhà mái nhật tân cổ điển 2 tầng đẹp sang trọng tạo sự khác biệt

Mẫu nhà mái nhật tân cổ điển 2 tầng đẹp sang trọng tạo sự khác biệt

Thông tin công trình:

Chủ đầu tư
Anh Thái
Địa chỉ
Nghệ An
Số tầng
2
Diện tích
288m2
Công năng
Phòng khách, phòng thờ, bếp ăn, 5 ngủ, 2 wc

Thông tin chi tiết

Cùng ngắm nhìn vẻ đẹp cuốn hút của mẫu nhà mái Nhật 2 tầng tân cổ điển do kiến trúc Acohome thiết kế cho gia đình anh Thái tại Nghệ An. Kiến trúc ngôi nhà là sự hòa quyện giữa phong cách tân cổ điển sang trọng và hệ mái Nhật bề thế, không chỉ mang lại vẻ đẹp bền vững mà còn tôn lên gu thẩm mỹ tinh tế và đẳng cấp của chủ đầu tư.

Ngôi nhà 2 tầng mái Nhật sở hữu vẻ đẹp ngoại thất trang nhã, sang trọng nhờ vào sự kết hợp tinh tế giữa nét đẹp cổ điển châu Âu pha lẫn chút hiện đại hợp xu hướng cùng với cảnh quan thiên nhiên yên bình đã mang đến một không gian sống vô cùng tiện nghi và lý tưởng.

Mặt tiền của ngôi nhà 2 tầng mái Nhật thu hút ánh nhìn bởi thiết kế độc đáo và sự kết hợp tinh tế giữa các chi tiết kiến trúc. Hệ cột vuông được thiết kế âm tường không chỉ tạo nên cảm giác bề thế, vững chãi mà còn làm nổi bật vẻ đẹp của ngôi nhà khi kết hợp với các cột tròn mềm mại nâng đỡ phần mái sảnh. Sự đối lập giữa các đường nét mạnh mẽ và mềm mại này mang đến một tổng thể hài hòa, uyển chuyển mà không kém phần sang trọng.

Điểm nhấn thêm vào sự cầu kỳ của mặt tiền là các chi tiết hoa văn, đường gờ phào được chạm khắc tỉ mỉ trên các đầu cột và diện tường. Bên cạnh đó, mái vòm sảnh cong mềm mại kết hợp cùng lan can sắt mỹ thuật mạ vàng tinh xảo, tạo nên vẻ đẹp xa hoa, quý phái cho ngôi nhà 2 tầng mái Nhật.

Sử dụng gam màu trắng kem chủ đạo kết hợp với những chi tiết kiến trúc này không chỉ tôn lên sự sang trọng mà còn thể hiện gu thẩm mỹ cao cấp và sự đầu tư kỹ lưỡng của gia chủ, biến ngôi nhà thành biểu tượng của sự đẳng cấp và tinh tế.

Cửa chính của ngôi nhà 2 tầng mái Nhật được làm từ chất liệu gỗ tự nhiên cao cấp, không chỉ mang lại sự an toàn và tính riêng tư tối ưu cho gia chủ, mà còn làm tăng thêm vẻ sang trọng và đẳng cấp cho khu vực mặt tiền.

Các hệ cửa còn lại được thiết kế bằng kính cường lực chắc chắn kết hợp với khung nhôm Xingfa hiện đại, giúp không gian trở nên thoáng đãng và ngập tràn ánh sáng tự nhiên. Nhờ đó, không khí trong lành và gió mát dễ dàng lưu thông, tạo cảm giác hài hòa, giúp con người thêm gắn kết với thiên nhiên trong chính ngôi nhà của mình.

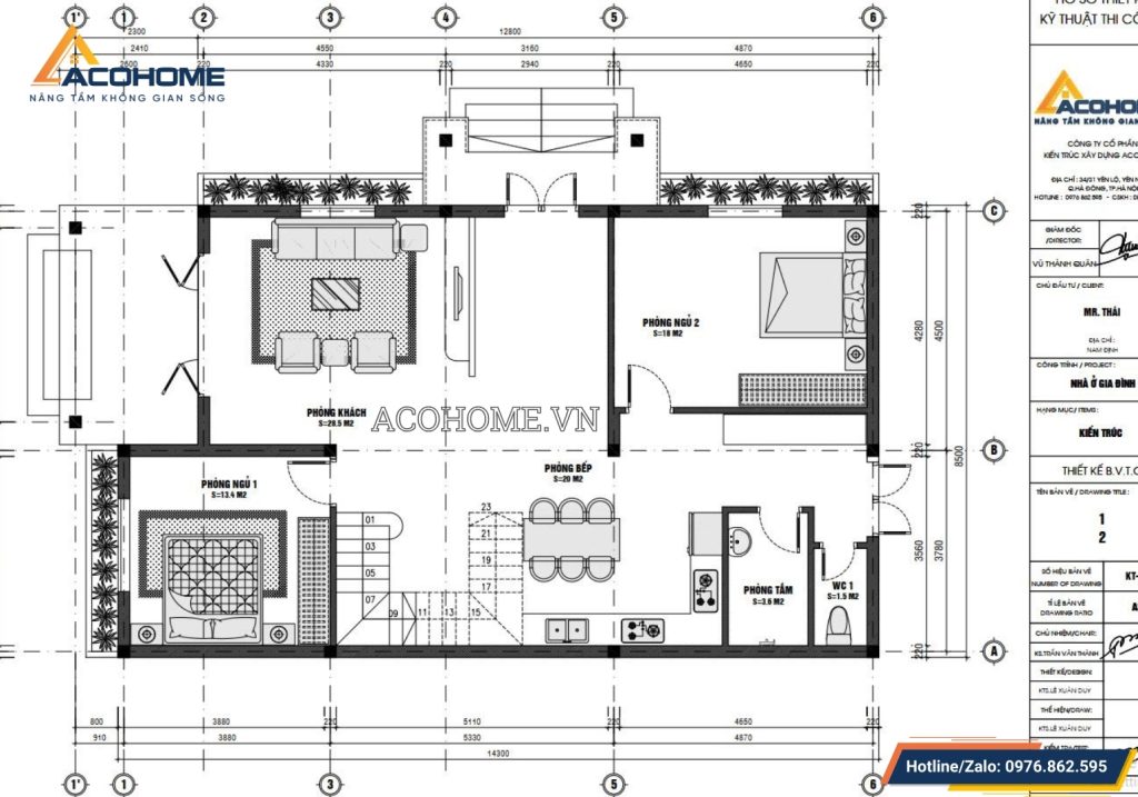
Từ sảnh chính bước vào là phòng khách sang trọng và thoáng mát, tại đây gia chủ sẽ bày trí một bộ sofa da cao cấp cùng bàn trà hình chữ nhật mặt kính và kệ tủ tivi hiện đại.

Phía sau là khu vực bếp và phòng ăn đầy đủ tiện nghi, hệ tủ bếp chữ L rộng lớn giúp lưu trữ đồ đạc gọn gàng, tại đây có một lối cửa đi ra bên sảnh phụ rất thuận tiện cho việc di chuyển cũng như giúp lưu thông không khí mát mẻ. Ngoài ra tầng 1 còn có 2 phòng ngủ và 1 nhà WC chung.

Phòng thờ được đặt trang trọng ở vị trí đẹp và hài hoà về phong thuỷ trên tầng 2, cạnh bên là phòng sinh hoạt chung. Hai phòng ngủ còn lại được bố trí đầy đủ tiện nghi với không gian rộng, thoáng để mang lại cảm giác thư giãn trọn vẹn cho chủ nhân căn phòng. Phòng ngủ 02 của vợ chồng gia chủ thiết kế khép kín và sở hữu ban công đón gió mát, view đẹp lý tưởng.

Khu vực giặt phơi sạch sẽ, tiện nghi bố trí phía sau nhà. Không thể thiếu 1 nhà vệ sinh chung để đảm bảo sự thuận tiện trong sinh hoạt hàng ngày của gia đình

Bài viết cùng chủ đề

Mẫu nhà 2 tầng mái Nhật “Đẹp từng góc nhỏ”

Mẫu nhà 2 tầng mái Nhật “Đẹp từng góc nhỏ”

Mẫu nhà 2 tầng không gian sống hiện đại và tiện nghi

Mẫu nhà 2 tầng không gian sống hiện đại và tiện...

Mẫu Nhà Mái Nhật Vẻ Đẹp Truyền Thống Bền Vững

Mẫu Nhà Mái Nhật Vẻ Đẹp Truyền Thống Bền Vững

Nhà Hiện Đại 3 Tầng Siêu Đẹp Biết Bao Gia Chủ Ngây Ngất

Nhà Hiện Đại 3 Tầng Siêu Đẹp Biết Bao Gia Chủ...

Biệt Thự Hiện Đại 3 Tầng Sống Trọn Từng Khoảnh Khắc

Biệt Thự Hiện Đại 3 Tầng Sống Trọn Từng Khoảnh Khắc

Mẫu Nhà Tân Cổ Điển Mái Nhật Mang Sức Hút Khó Cưỡng

Mẫu Nhà Tân Cổ Điển Mái Nhật Mang Sức Hút Khó...

Nhà Mái Nhật 2 Tầng Tân Cổ Điển Cực Đẳng Cấp

Nhà Mái Nhật 2 Tầng Tân Cổ Điển Cực Đẳng Cấp

Nhà Phố Hiện Đại  Xu Hướng Kiến Trúc Dẫn Đầu Thời Đại

Nhà Phố Hiện Đại Xu Hướng Kiến Trúc Dẫn Đầu Thời...

Mẫu nhà mái Nhật Mẫu Nhà Mái Nhật Đẹp Khó Cưỡng

Mẫu nhà mái Nhật Mẫu Nhà Mái Nhật Đẹp Khó Cưỡng

Nhà Mái Thái 2 Tầng Mang Vẻ Đẹp Hiện Đại, Sang Trọng

Nhà Mái Thái 2 Tầng Mang Vẻ Đẹp Hiện Đại, Sang...

Nhà Mái Nhật Đẹp 2 Tầng Hiện Đại Có Bố Trí Công Năng Hợp Lý

Nhà Mái Nhật Đẹp 2 Tầng Hiện Đại Có Bố Trí...

Mẫu Nhà Cấp 4 Độc Đáo Mang Nét Đẹp Riêng

Mẫu Nhà Cấp 4 Độc Đáo Mang Nét Đẹp Riêng

Nhà Mái Nhật Đẹp 2 Tầng – Hiện Đại, Thoáng Mát, Dễ Thi Công

Nhà Mái Nhật Đẹp 2 Tầng – Hiện Đại, Thoáng Mát,...

Biệt Thự Tân Cổ Điển Mái Thái Mang Đậm Nét Đẹp Truyền Thống

Biệt Thự Tân Cổ Điển Mái Thái Mang Đậm Nét Đẹp...

Mẫu Nhà Mái Nhật 2 Tầng Đẹp, Ấm Trọn Từng Khoảnh Khắc

Mẫu Nhà Mái Nhật 2 Tầng Đẹp, Ấm Trọn Từng Khoảnh...

Mẫu Nhà Mái Nhật Hiện Đại – Ai Nhìn cũng mê Đẹp Chuẩn Resort

Mẫu Nhà Mái Nhật Hiện Đại – Ai Nhìn cũng mê...

Công trình mới

    Gửi yêu cầu tư vấn

    Sau khi nhận được yêu cầu tư vấn của quý khách, AcoHome sẽ liên hệ sớm nhất có thể để tư vấn cho quý vị