Trang chủ / Thiết kế / Biệt thự / Thiết kế thi công trọn gói mẫu biệt thự hiện đại 2 tầng đi cùng năm tháng thời gian
Thiết kế thi công trọn gói mẫu biệt thự hiện đại 2 tầng đi cùng năm tháng thời gian











Thông tin công trình:
Thông tin chi tiết
Cùng chiêm ngưỡng siêu phẩm nhà hiện đại 2 tầng đang dẫn đầu xu hướng thiết kế hiện nay của gia đình anh Hiền tại Ninh Bình. Nhà mái bằng không chỉ có kiến trúc đẹp độc đáo, ấn tượng mà còn giúp gia chủ tiết kiệm chi phí cùng thời gian thi công nhanh chóng, ngoài ra vẫn đảm bảo được công năng sử dụng cao cấp, tiện nghi.
Ngôi nhà mái bằng 2 tầng được acohome thiết kế theo phong cách hiện đại với kiến trúc ngoại thất đẹp sang trọng, độc đáo nhờ vào sự kết hợp hài hoà, tinh tế của màu sắc và các vật liệu trang trí mới. Đi cùng với đó là những yếu tố như phân bổ công năng khoa học, thiết kế nhà đẹp chuẩn phong thủy, acohome đã mang đến một không gian sống lý tưởng cho gia chủ.

Toạ lạc trên khu đất vuông vức nên ngôi nhà hiện đại 2 tầng này không có quá nhiều khoảng thò thụt mà rất đăng đối theo khối 1 hình học, từng khoảng đua, khoảng giật hợp lý tạo không gian mở và tối ưu không gian sử dụng cho gia đình.
Những mảng khối xếp chồng lên nhau một cách sáng tạo, có tính toán mang lại dáng vẻ uy nghi, kiên cố. Từng đường nét trang trí đơn giản, khoẻ khoắn tạo sự mới mẻ, trẻ trung đầy phóng khoáng.

Tone màu chủ đạo được sử dụng cho ngoại thất ngôi nhà 2 tầng hiện đại là màu trắng và nâu kết hợp hoàn hảo với những vật liệu mới: gỗ nhựa, khung nhôm kính xingfa, lan can kính cường lực, đá granite, đá chẻ,… đã mang đến một tổng thể vô cùng sang trọng và thời thượng.

Toàn bộ hệ thống cửa được acohome làm bằng kính cường lực khung nhôm xingfa cao cấp tạo sự sang trọng cho kiến trúc mặt tiền đồng thời góp phần mở rộng không gian sinh hoạt, tạo sự thông thoáng thu hút ánh sáng và gió trời giúp gắn kết con người đến gần với thiên nhiên.
Chân đế cũng được tôn cao hơn so với mặt đường để tránh việc nước mưa bắn hắt vào trong nhà, bậc sảnh sử dụng hoàn toàn là đá hoa cương màu đen vân mây sang trọng tạo nên vẻ đẹp trường tồn với thời gian.


Các KTS Acohome đã khéo léo thiết kế những khoảng đua tạo ban công và mái hiên rộng thoáng, đồng thời tạo ra một nơi thư giãn, ngắm cảnh lý tưởng cho gia đình. Ngoại thất ngôi nhà 2 tầng vô cùng sinh động và đẹp mắt với những bồn hoa nhỏ xinh, những chậu tiểu cảnh trồng ở phía trước mặt tiền, trên ban công giúp mang đến bầu không khí dịu mát, trong lành.

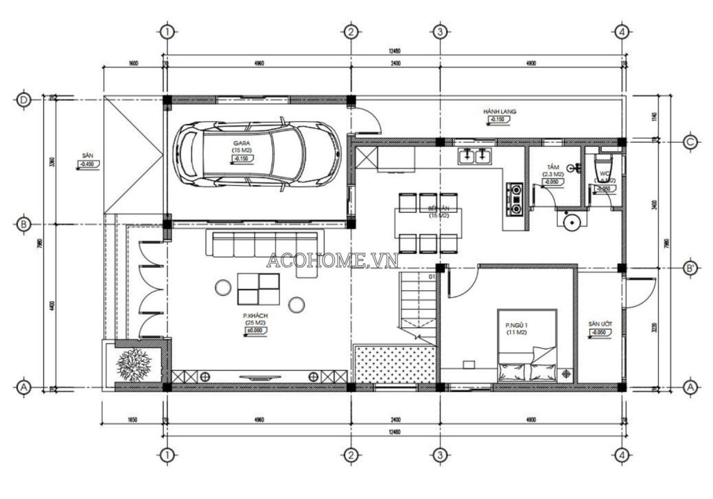
Về vị trí, công trình nằm ở hướng Tây Nam, có kích thước 8 x 12,2m. Tổng diện tích sử dụng rơi vào khoảng 250m². Sau đây là bản vẽ chi tiết mặt bằng công năng vô cùng khoa học và tiện nghi, Acohome xin chia sẻ để bạn đọc cùng tham khảo.

Từ sảnh chính bước vào là phòng khách rộng rãi, sang trọng, phía sau vách ngăn kệ tủ tivi là phòng bếp ăn tiện nghi. Một phòng ngủ bố trí cạnh cầu thang có diện tích rộng rãi, đầy đủ tiện nghi đáp ứng nhu cầu sử dụng thoải mái và riêng tư. Cuối nhà là khu vực nhà vệ sinh chung kín đáo, lịch sự. Phía bên canh được bộ trí một gara rộng rãi để cho chủ nhà để oto

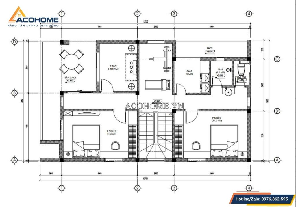
Không gian thờ cúng trang nghiêm được đặt trên tầng 2, tại vị trí đẹp, hài hoà phong thuỷ. Đối diện là phòng ngủ 02 và 1 nhà vệ sinh chung. Sân thượng vô cùng rộng rãi, thoáng đãng sẽ là không gian sinh hoạt chung lý tưởng cho cả gia đình.

















