Trang chủ / Thiết kế / Biệt thự / Mẫu nhà hiện đại 2 tầng nét đẹp thời thượng thu hút mọi ánh nhìn

Mẫu nhà hiện đại 2 tầng nét đẹp thời thượng thu hút mọi ánh nhìn

Mau Nha Hien Dai
Mau Nha Hien Dai (2)
Mau Nha Hien Dai (3)
Mau Nha Hien Dai (4)
Mau Nha Hien Dai (5)
Mau Nha Hien Dai (6)
Cong Nang Tang 1
Cong Nang Tang 2

Thông tin công trình:

Chủ đầu tư
Anh Hoàn
Địa chỉ
Ninh Bình
Số tầng
2 tầng
Diện tích
204m2
Công năng
1 phòng khách, 1 phòng bếp, 5 phòng ngủ, 1 phòng thờ, 1 phòng đọc sách, 2 wc

Thông tin chi tiết

Tổng quát về mẫu nhà phong cách hiện đại

Xu hướng ưa chuộng sự tối gian đang dần được hình thành. Tác động trực tiếp đến việc lựa chọn phong cách thiết kế nhà ở. Mẫu nhà hiện đại là “ứng viên sáng giá” trong cuộc bầu chọn này. Thiết kế này chú trọng công năng và phù hợp với lối sống tân tiến. Khác với các phong cách cổ điển, chi tiết trang trí mẫu nhà hiện đại hạn chế các hoa văn cầu kỳ. Nhường ngôi cho các họa tiết đơn giản kết hợp với vật liệu trang trí tự nhiên.

Mẫu nhà kiểu hiện đại được đánh giá cao nhờ khả năng bố trí không gian linh hoạt. Tối ưu diện tích sử dụng và mang lại sự tiện nghi cho các thành viên trong gia đình.

Mau Nha Hien Dai

Giới thiệu chung về mẫu nhà hiện đại mái Nhật do Acohome thiết kế

Acohome thiết kế mẫu nhà hiện đại này dựa trên nhu cầu và sở thích của chủ đầu tư. Tổng thể công trình mang phong cách kiến trúc gọn gàng và bề thế. Bản vẽ phù hợp với nhiều khu đất ở nông thôn và cả thành thị.

Điểm nổi bật của công trình này là sự kết hợp giữa kiến trúc hiện đại và hệ mái Nhật đặc trưng. Ban công lớn tạo thành một không gian thư giãn ngoài trời ngay tại tầng hai. Cửa sổ khung nhôm Xingfa có độ bền cao và khả năng chịu lực tốt. Bố cục tổng thể được thiết kế cân đối tạo nên vẻ đẹp hài hòa cho căn nhà.

Không gian xung quanh được thiết kế sân vườn rộng rãi. Điều này giúp căn hộ luôn thông thoáng và tạo môi trường sống gần gũi với thiên nhiên.

xem thêm: Mẫu Nhà Mái Nhật Vẻ Đẹp Truyền Thống Bền Vững

Ngoại thất của mẫu nhà hiện đại 2 tầng mái Nhật.

Mau Nha Hien Dai (2)

Ngoại thất của mẫu nhà hiện đại này được thiết kế và trang trí chi tiết trên từng đường nét. Điểm nổi bật đặc trưng là kiểu mái Nhật có độ dốc vừa phải. Thiết kế này giúp công trình thoát nước tốt. Khu vực sảnh chính được thiết kế với các cột trụ vuông chắc chắn. Chi tiết này giúp tăng sự vững chãi và tạo điểm nhấn sang trọng cho mẫu nhà hiện đại.

Lan can kính cường lực hạn chế che khuất tầm nhìn và giúp không gian ban công trở nên thoáng đãng hơn. Hệ cửa chính bằng thép vân gỗ mang lại cảm giác chắc chắn và sang trọng. Khuôn viên sân vườn được thiết kế với lối đi lát đá và cây xanh trang trí. Cách bày trí này giúp tăng tính thẩm mỹ cho tổng thể ngôi nhà.

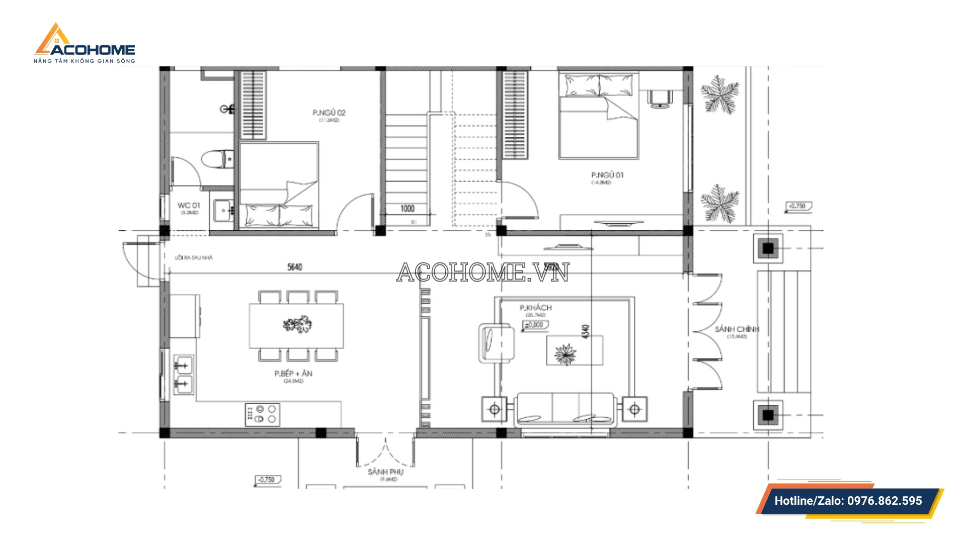
Công năng tầng 1

Cong Nang Tang 1

Tầng 1 của mẫu nhà hiện đại với thiết kế công năng bao gồm: 1 sảnh chính, 1 phòng khách, 1 phòng bếp, 2 phòng ngủ, 1 wc chung. Khu vực sảnh chính phụ trách đón khách trước khi bước vào không gian bên trong. Phòng khách với diện tích 26.3m2 là không gian rộng rãi phù hợp cho việc tiếp khách và sinh hoạt chung. Khu vực bếp và ăn uống được bố trí trong 1 phòng. Điều này tạo thuận lợi cho gia chủ trong việc sinh hoạt hằng ngày. Tầng 1 cũng được bố trí 2 phòng ngủ có diện tích lần lượt là 14.5m², 11.5m². Đặc biệt phù hợp cho các gia đình có người lớn tuổi.

Cách bố trí khoa học giúp ngôi nhà gọn gàng và ngăn nắp. Đảm bảo không gian sống thoải mái và tiện lợi cho toàn bộ thành viên trong gia đình.

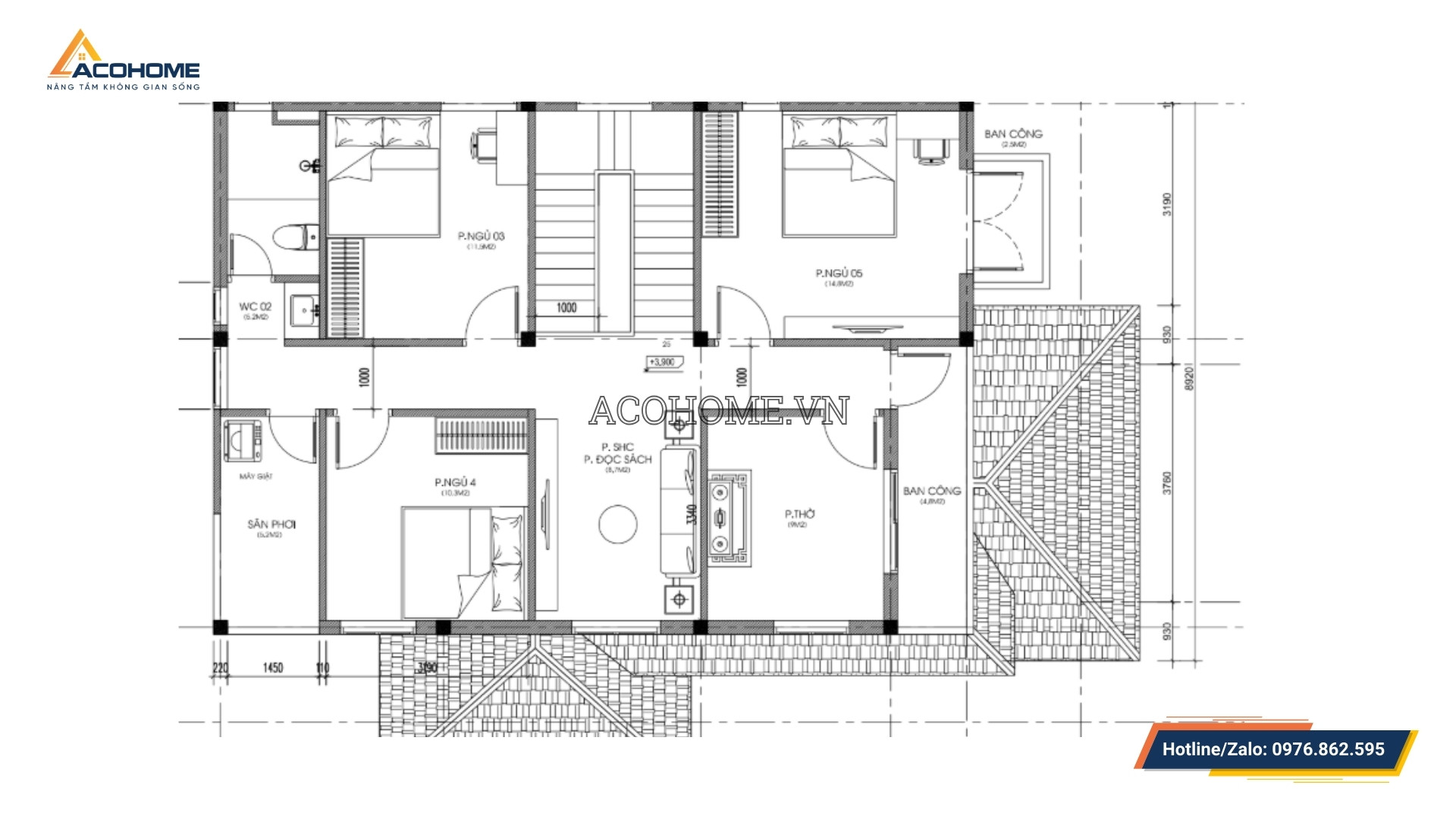
Công năng tầng 2

Cong Nang Tang 2

Tầng 2 của mẫu nhà hiện đại với thiết kế công năng gồm 3 phòng ngủ, 1 phòng đọc sách, 1 phòng thờ, 1 sân phơi, 1 ban công, 1 wc. Phòng ngủ với diện tích lần lượt là: 11.5m², 10.3m², 14.4m² là không gian riêng tư cho từng thành viên.

Mẫu nhà hiện đại này còn tinh tế bố trí thêm khu vực giải trí cho gia đình. Khu vực đọc sách (8.7m²) giúp thành viên thư giãn sau các giờ làm việc mệt mỏi. Phòng thờ được bố trí ở vị trí trang trọng và yên tĩnh. Thiết kế này còn chắp bút vẽ thêm khu vực sân phơi cho gia chủ. Không gian này được bố trí riêng biệt giúp ngôi nhà luôn khô ráo và gọn gàng. Thấu hiểu nhu cầu giải tỏa căng thẳng của khách hàng. Đội ngũ kiến trúc sư đã thiết kế ban công đón nắng. Gia chủ có thể đặt bàn trà và tĩnh tâm tại khu vực này.

Điểm nhấn của mẫu nhà hiện đại 2 tầng

Bản vẽ này có nhiều điểm cộng nổi bật. Phù hợp đứng vị trí số 1 trong lòng nhiều chủ đầu tư.

  • Kiến trúc mang lại vẻ đẹp kiến trúc hài hòa và phù hợp với xu hướng hiện nay.

  • Công năng bố trí khoa học giúp tối ưu diện tích sử dụng.

  • Không gian sống thông thoáng nhờ hệ cửa kính và ban công.

Kết luận

Đây là mẫu nhà hiện đại 2 tầng được thiết kế hài hòa giữa kiến trúc và công năng sử dụng. Với ngoại thất sang trọng và cách bố trí không gian khoa học. Tạo thành môi trường sống thoáng đãng, phù hợp với nhu cầu sinh hoạt của nhiều gia đình hiện nay.

Nếu bạn đang tìm kiếm một mẫu nhà hiện đại tiện nghi và thẩm mỹ. Mẫu thiết kế này chắc chắn là một gợi ý đáng tham khảo từ đội ngũ kiến trúc sư Acohome.

xem thêm: Nhà Mái Thái 2 Tầng Mang Vẻ Đẹp Hiện Đại, Sang Trọng

Acohome – Đơn Vị Thiết Kế & Thi Công Uy Tín

Acohome là đơn vị chuyên thiết kế, thi công nhà mái Nhật hiện đại, cam kết chất lượng và dịch vụ uy tín. Với đội ngũ chuyên môn cao, Acohome mang đến giải pháp phù hợp nhất cho từng không gian sống gia đình. Cam kết bàn giao đúng tiến độ, đúng thiết kế. Bảo hành rõ ràng, đảm bảo sự hài lòng của khách hàng.

Tìm hiểu thêm về Acohome:

 

Bài viết cùng chủ đề

Mẫu nhà mái Nhật với nét đẹp siêu “bánh cuốn”

Mẫu nhà mái Nhật với nét đẹp siêu “bánh cuốn”

Mẫu nhà mái Nhật với vẻ đẹp cân đối và thanh thoát.

Mẫu nhà mái Nhật với vẻ đẹp cân đối và thanh...

Mẫu nhà 2 tầng mái bằng, thiết kế sang trọng và tinh tế.

Mẫu nhà 2 tầng mái bằng, thiết kế sang trọng và...

Mẫu nhà 2 tầng mái Nhật “Đẹp từng góc nhỏ”

Mẫu nhà 2 tầng mái Nhật “Đẹp từng góc nhỏ”

Mẫu nhà 2 tầng không gian sống hiện đại và tiện nghi

Mẫu nhà 2 tầng không gian sống hiện đại và tiện...

Mẫu Nhà Mái Nhật Vẻ Đẹp Truyền Thống Bền Vững

Mẫu Nhà Mái Nhật Vẻ Đẹp Truyền Thống Bền Vững

Mẫu Nhà Ống Đẹp 4 Tầng Hiện Đại Với Công Năng Khoa Học

Mẫu Nhà Ống Đẹp 4 Tầng Hiện Đại Với Công Năng...

Mẫu Nhà 2 Tầng Hiện Đại Không Gian Sống Thời Thượng

Mẫu Nhà 2 Tầng Hiện Đại Không Gian Sống Thời Thượng

Nhà Hiện Đại 3 Tầng Siêu Đẹp Biết Bao Gia Chủ Ngây Ngất

Nhà Hiện Đại 3 Tầng Siêu Đẹp Biết Bao Gia Chủ...

Biệt Thự Hiện Đại 3 Tầng Sống Trọn Từng Khoảnh Khắc

Biệt Thự Hiện Đại 3 Tầng Sống Trọn Từng Khoảnh Khắc

Mẫu Nhà Tân Cổ Điển Mái Nhật Mang Sức Hút Khó Cưỡng

Mẫu Nhà Tân Cổ Điển Mái Nhật Mang Sức Hút Khó...

Nhà Mái Nhật 2 Tầng Tân Cổ Điển Cực Đẳng Cấp

Nhà Mái Nhật 2 Tầng Tân Cổ Điển Cực Đẳng Cấp

Nhà Phố Hiện Đại  Xu Hướng Kiến Trúc Dẫn Đầu Thời Đại

Nhà Phố Hiện Đại Xu Hướng Kiến Trúc Dẫn Đầu Thời...

Mẫu nhà mái Nhật Mẫu Nhà Mái Nhật Đẹp Khó Cưỡng

Mẫu nhà mái Nhật Mẫu Nhà Mái Nhật Đẹp Khó Cưỡng

Mẫu Nhà Ống Đẹp – Hiện Đại Không Gian Đáng Sống

Mẫu Nhà Ống Đẹp – Hiện Đại Không Gian Đáng Sống

Nhà Mái Thái 2 Tầng Mang Vẻ Đẹp Hiện Đại, Sang Trọng

Nhà Mái Thái 2 Tầng Mang Vẻ Đẹp Hiện Đại, Sang...

Công trình mới

    Gửi yêu cầu tư vấn

    Sau khi nhận được yêu cầu tư vấn của quý khách, AcoHome sẽ liên hệ sớm nhất có thể để tư vấn cho quý vị