Trang chủ / Thiết kế / Biệt thự / Mẫu nhà mái nhật hiện đại 2 tầng 4 ngủ đẹp giản dị giữa vùng quê Nam Định
Mẫu nhà mái nhật hiện đại 2 tầng 4 ngủ đẹp giản dị giữa vùng quê Nam Định











Thông tin công trình:
Thông tin chi tiết
Mẫu nhà 2 tầng mái Nhật với mặt tiền rộng 8m mang đến sự thoáng đãng và không gian sống lý tưởng cho gia đình. Thiết kế này không chỉ tạo cảm giác rộng rãi mà còn tối ưu hoá công năng sử dụng, phù hợp với nhu cầu sinh hoạt của gia đình có từ 3-5 thành viên. Tham khảo ngay mẫu nhà đẹp dưới đây để tìm cảm hứng và chọn cho mình phong cách thiết kế ưng ý nhất nhé!
Khi tư vấn về mẫu nhà 2 tầng mái Nhật hiện đại với mặt tiền 8m, các kiến trúc sư acohome nhận định rằng thiết kế này rất phù hợp với diện tích khuôn viên cũng như yêu cầu về thẩm mỹ của gia chủ. Mẫu nhà này không chỉ tận dụng tối đa diện tích đất mà còn đảm bảo sự cân đối và hài hòa trong tổng thể kiến trúc.

Một trong những đặc điểm nổi bật của kiến trúc hiện đại là sự tối giản trong cả hình khối và trang trí. Mẫu nhà 2 tầng mái Nhật với mặt tiền 8m áp dụng triệt để các đường nét thẳng, sắc cạnh rõ ràng, loại bỏ hoàn toàn những chi tiết trang trí cầu kỳ, phức tạp. Việc sử dụng phong cách tối giản còn có tác dụng mở rộng không gian, giúp ngoại thất và nội thất của ngôi nhà trở nên thông thoáng và dễ chịu hơn.

Mẫu nhà mái Nhật 2 tầng mặt tiền 8m thu hút sự chú ý của gia chủ nhờ sự kết hợp tinh tế giữa màu sắc, hình khối, và các vật liệu hoàn thiện bên ngoài. Gam màu trắng chủ đạo, được lựa chọn để làm nổi bật không gian, phối hợp hài hòa với sắc xanh tại các mảng tường. Gạch inax được sử dụng khéo léo tại các chi tiết như viền cửa sổ và chân cột, tạo nên điểm nhấn tinh tế và chắc chắn. Màu trắng không chỉ đóng vai trò chủ đạo mà còn giúp ngôi nhà trở nên thanh thoát và hiện đại hơn trong tổng thể thiết kế.

Hầu hết các cửa trong thiết kế nhà 2 tầng mái Nhật mặt tiền 8m này đều sử dụng hệ nhôm kính cường lực, mang đến sự hiện đại và độ bền cao. Riêng cửa chính được làm từ gỗ tự nhiên, nổi bật với độ bền vượt trội, không chỉ tạo nên vẻ sang trọng mà còn mang lại giá trị thẩm mỹ lâu dài, thể hiện sự hòa quyện giữa truyền thống và hiện đại. Mái che ban công và lan can cũng sử dụng chất liệu kính cường lực, giúp tối ưu hóa ánh sáng tự nhiên và tạo cảm giác không gian mở, thông thoáng cho ngôi nhà.

Công trình này được xây dựng trên khu đất có hình dáng không vuông vắn, nhưng các kiến trúc sư của Acohome đã khéo léo điều chỉnh thiết kế, tạo nên một không gian hài hòa và hoàn thiện. Nhờ vào sự sáng tạo và kinh nghiệm, công trình không chỉ khắc phục được nhược điểm của khu đất mà còn mang lại tính thẩm mỹ cao, đáp ứng đầy đủ các yêu cầu về công năng và tiện nghi cho gia chủ.

Công trình nhà mái Nhật 2 tầng mặt tiền 8m của nhà chị Thủy tại Nam Định được xây dựng với kích thước 8 x 14,7m. Tổng diện tích sử dụng của 2 tầng sẽ rơi vào khoảng 235m².

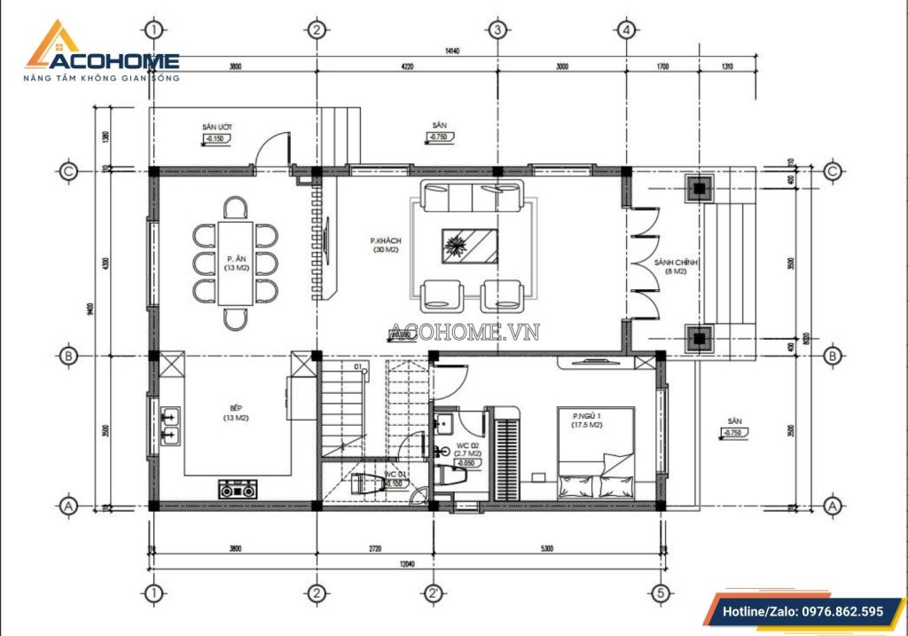
Bước vào từ cửa chính là không gian phòng khách rộng rãi, thoáng đãng, tạo cảm giác chào đón. Từ sảnh phụ, gia chủ cũng có thể tiếp cận trực tiếp khu vực phòng khách một cách tiện lợi. Tiếp theo, phòng bếp và khu vực ăn uống của gia đình được thiết kế liền kề, đảm bảo sự kết nối và tiện nghi trong sinh hoạt. Bên cạnh đó, ngôi nhà còn bố trí 1 phòng ngủ tiện nghi, mang lại không gian nghỉ ngơi thoải mái. Nhà vệ sinh chung được sắp xếp hợp lý ở cuối nhà, đảm bảo sự riêng tư và thuận tiện cho cả gia đình.

Khi di chuyển lên tầng 2, gia chủ sẽ tiếp cận ngay với phòng thờ trang nghiêm, đặt ở vị trí trung tâm. Phần diện tích còn lại bao gồm 3 phòng ngủ rộng rãi, trong đó phòng ngủ 02 được thiết kế tiện nghi với nhà vệ sinh khép kín, đảm bảo sự riêng tư. Nhà vệ sinh chung được bố trí hợp lý ở cuối tầng, phục vụ thuận tiện cho các thành viên còn lại trong gia đình.

















