Trang chủ / Thiết kế / Biệt thự / Mẫu Nhà Mái Nhât 2 Tầng Tân Cổ Điển 4 Phòng Ngủ, Sự Giản Dị Trong Thiết Kế, Sự Sang Trọng Trong Không Gian
Mẫu Nhà Mái Nhât 2 Tầng Tân Cổ Điển 4 Phòng Ngủ, Sự Giản Dị Trong Thiết Kế, Sự Sang Trọng Trong Không Gian








Thông tin công trình:
Thông tin chi tiết
Mẫu nhà mái Nhật 2 tầng tân cổ điển được thiết kế trên một khu đất rộng rãi, bố trí khoa học với 4 phòng ngủ, rất phù hợp cho các gia đình đông thành viên hoặc nhiều thế hệ cùng chung sống. Sự kết hợp tinh tế giữa mái Nhật và phong cách tân cổ điển không chỉ mang đến vẻ đẹp ấn tượng và sang trọng cho ngôi nhà mà còn tạo nên một không gian sống thoải mái và tiện nghi. Mời bạn cùng tham khảo mẫu nhà đẹp dưới đây nhé!
Sau khi tham khảo các mẫu nhà trên mạng, anh Minh – gia chủ, rất ấn tượng với thiết kế của kiến trúc ACOHOME và đã liên hệ để nhờ kiến trúc sư tư vấn thiết kế. Hiểu được nhu cầu và mong muốn của anh Phi, đội ngũ kiến trúc sư của ACOHOME đã lên phương án thiết kế ngôi nhà 2 tầng mái Nhật mang phong cách kiến trúc tân cổ điển.

Với thiết kế nhà mái Nhật này không chỉ kết hợp những đường nét tinh tế mà còn chú trọng đến các yếu tố nghệ thuật cầu kỳ, tạo nên một không gian sống sang trọng và đẳng cấp. Mỗi chi tiết trong ngôi nhà đều được chăm chút kỹ lưỡng, từ việc chọn lựa vật liệu xây dựng cao cấp đến cách bố trí nội thất hợp lý, đảm bảo sự tiện nghi và thoải mái cho cả gia đình.

Với thiết kế nhà mái Nhật này không chỉ kết hợp những đường nét tinh tế mà còn chú trọng đến các yếu tố nghệ thuật cầu kỳ, tạo nên một không gian sống sang trọng và đẳng cấp. Mỗi chi tiết trong ngôi nhà đều được chăm chút kỹ lưỡng, từ việc chọn lựa vật liệu xây dựng cao cấp đến cách bố trí nội thất hợp lý, đảm bảo sự tiện nghi và thoải mái cho cả gia đình.

Khi bước vào sảnh rộng rãi, ta ngay lập tức bị thu hút bởi hệ thống cửa chính kết hợp giữa gỗ sồi đỏ và kính thời thượng, cho phép ánh sáng và gió tự nhiên tràn vào không gian. Vào ban đêm, toàn bộ khu vực tiền sảnh trở nên sang trọng, hoành tráng và bắt mắt hơn bao giờ hết dưới ánh sáng vàng rực rỡ của những chiếc đèn tinh xảo.

Hệ mái Nhật được thiết kế với nhiều lớp chồng lên nhau và lắp đặt một cách tỉ mỉ, đảm bảo tính thẩm mỹ và độ bền vững cho ngôi nhà. Sử dụng ngói cao cấp để đảm bảo khả năng chống thấm nước và chịu được thời tiết khắc nghiệt.

Ngôi nhà có khu vực sảnh chính rộng rãi, từ đây dẫn vào phòng khách và kết nối liền mạch với phòng ăn. Sảnh chính được thiết kế mở, tạo cảm giác thông thoáng và dễ dàng di chuyển giữa các khu vực. Đối diện phòng thờ được đặt cùng hướng nhà chính để thờ kính ông bà tổ tiên cũng như đón tài lộc cho gia chủ, khu vực bếp ăn đầy đủ tiện nghi được liền mạch với không gian phòng khách. Ngoài ra, tầng 1 có một phòng ngủ được thiết kế riêng dành cho người lớn tuổi để thuận tiện đi lại, wc chung được đặt cuối nhà

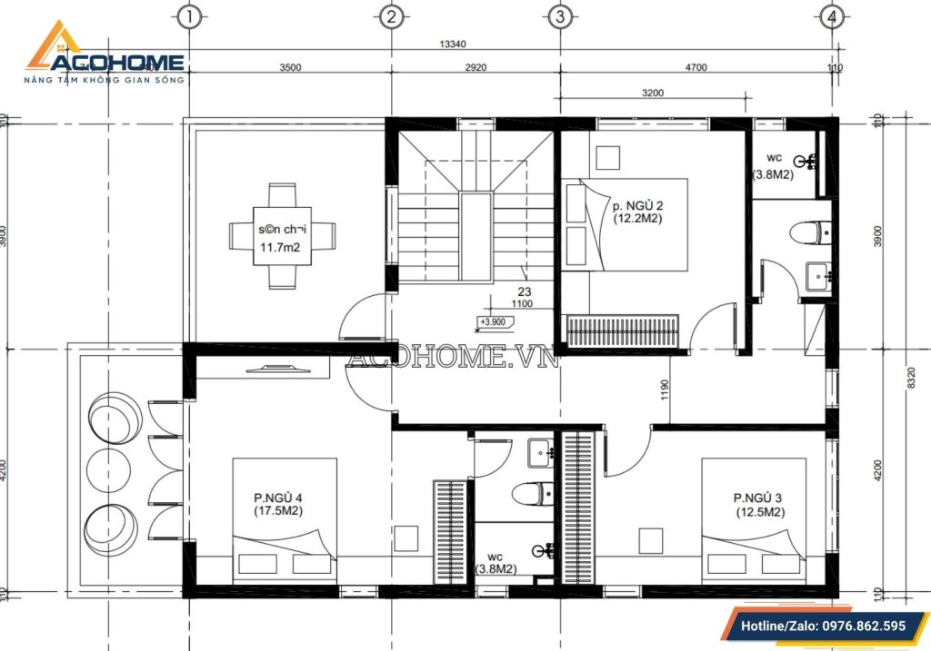
Tầng 2 này còn có ba phòng ngủ, mỗi phòng được thiết kế với phong cách riêng, đảm bảo sự thoải mái và tiện nghi cho từng thành viên trong gia đình.Trong đó có 1 phòng khép kín tạo sự riêng tư cho gia chủ

















