Trang chủ / Thiết kế / Biệt thự / Mẫu Nhà Hiện Đại Sân Vườn 1 Tầng Đẹp Nhất Hiện Nay
Mẫu Nhà Hiện Đại Sân Vườn 1 Tầng Đẹp Nhất Hiện Nay







Thông tin công trình:
Thông tin chi tiết
Công trình Acohome thiết kế cho gia đình anh Tình tại Nam Định được gia chủ vô cùng hài lòng và hết lời khen ngợi. Mẫu nhà mái bằng mang phong cách hiện đại, gây ấn tượng với người nhìn bởi kiến trúc 3D sáng tạo, độc đáo. Ngôi nhà còn được bố trí công năng phù hợp đem đến không gian sống tiện nghi cho gia chủ. Cùng khám phá chi tiết mặt bằng công năng và vẻ đẹp đầy thú vị của mẫu nhà đẹp này qua bài viết dưới đây.
Nhà cấp 4 mái bằng được acohome thiết kế để lại ấn tượng với hình khối vuông vắn, trẻ trung độc đáo, các đường nét thẳng dứt khoát mang đến cho ngôi nhà dáng vẻ mạnh mẽ, phóng khoáng. Đặc trưng của phong cách thiết kế hiện đại là không quá cầu kỳ thay vào đó là thiết kế kiến trúc đơn giản, màu sắc trung tính hài hòa, tạo nét đẹp bình dị, gần gũi với thiên nhiên.

Tone màu chủ đạo được Acohome thiết kế là màu trắng vô cùng trong trẻo và tươi sáng. Màu trắng toát lên vẻ đẹp thanh lịch, nhã nhặn rất thu hút và không bao giờ bị lỗi thời. Thiết kế tone trắng cũng giúp mẫu nhà này trở nên rộng và thoáng đãng hơn, kết hợp cùng các vật liệu trang trí, gạch Inax đá Granite, đá chẻ, cửa kính khung nhôm Xingfa làm tôn lên vẻ đẹp hiện đại của ngôi nhà.

Ngôi nhà có mặt tiền rộng 11m, với 3/4 diện tường được ốp gạch Inax trang trí mang đến tổng thể sang trọng đầy thẩm mỹ. Ngoài việc sử dụng gạch, màu sắc sơn để trang trí, thì ngoại thất của mẫu thiết kế nhà cấp 4 mái bằng còn gây được ấn tượng mạnh mẽ bởi hệ thống cửa kính khung nhôm hiện đại. Cửa kính có hiệu quả to lớn trong việc lấy sáng mặt trời, hấp thụ gió tự nhiên tốt giúp cho không gian nội thất luôn được cung cấp đầy đủ ánh sáng, trở lên mát mẻ và thông thoáng một cách tối ưu nhất, xua tan đi sự bức bí ngột ngạt.

Những ngôi nhà mái bằng thiết kế theo phong cách hiện đại thường sẽ chú trọng vào thiên nhiên, đem đến không gian sống thoáng mát, tươi mới giúp con người tăng cường sức khỏe, giảm stress và thư giãn.
Ở đây các KTS ACOHOME đã thiết kế một không gian tiểu cảnh ngay phía trước để gia chủ nghỉ ngơi, thưởng trà, và giúp không gian sinh hoạt bớt bí bách, trong lành hơn rất nhiều.

Ngôi nhà có khoảng sân rộng rất thuận tiện cho việc vui chơi, giải trí phù hợp cho việc nghỉ ngơi, của các thành viên sau một ngày làm việc mệt mỏi. Ngoài ra phần sân rộng gia chủ có thể để phương tiện đi lại bên trong sân nhà, đảm bảo an toàn cho tài sản của gia đình.

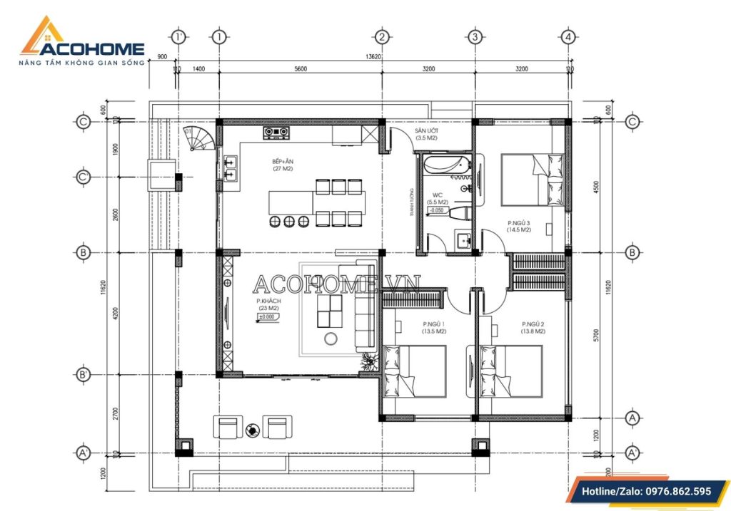
Từ sảnh chính đi vào là phòng khách rộng rãi, sang trọng, tại đây gia chủ có bày trí một bộ sofa, bàn trà cao cấp để tiếp đón khách quý. Đi sâu vào trong là 3 phòng ngủ, mỗi phòng đều có thiết kế những ô cửa sổ giúp đón ánh sáng, luân chuyển không khí tạo nên một không gian nghỉ ngơi thoáng đãng, đem đến giấc ngủ ngon cho các thành viên trong gia đình.
Phòng bếp được đặt cạnh phòng khách, có lối đi ra cửa 1 cánh thuận tiện đảm bảo thuận tiện khi di chuyển và tránh bay mùi ra không gian sinh hoạt chung của cả gia đình. Nhà vệ sinh chung được bố trí kín đáo, lịch sự cạnh khu bếp.

Mặt bằng bố trí công năng
















